1. Skip to Menu
  2. Skip to Content
  3. Skip to Footer

Коттедж, р-н Червишевский тракт


Тип:Коттедж
Населенный пункт:Тюмень
Район:Червишевский тракт
Пункт ориентир:п.Комарово
Удаленность от города:1 км.
Этажность:3
Материал:Каркасный
Возраст дома:4
Площадь дома:250 кв.м.
Площадь участка:10 сот.
Дата:2015-04-10 22:16:36
ЦЕНА:11 800 000 руб.


Специалист:
Юмачиков Руслан Ахзямович
тел.: 89129928256
e-mail: ruslanyum77@gmail.com

Описание объекта
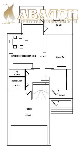
Продается коттедж в Комарово (Тюмень) сделанный по новейшей канадской технологии, 3 этажный. 250 кв.м. Ремонт, современный дизайн. Первый этаж: кухня-гостинная с выходом в зимний сад (12 кв.м), погреб под зимним садом (не затапливается), гостевой туалет, котельная, есть возможность выйти в гараж из дома. Второй этаж: три комнаты, спальня с с/узлом, с/у детский . Третий этаж-мансарда. Остается кухня с бытовой техникой, шкафы-купе (в каждой комнате и прихожей), гардеробная в спальне, мойдодыры в с/у. Великолепный гараж на 2 машины, Год постройки 2010г. 10 соток земли в собственности: грядки, насаждения (яблони, груши, слива, вишня) По периметру проведена система полива. Поселок газифицирован, центральный водопровод и канализация. Комарово - Единственный поселок в городе Тюмень с общим архитектурным дизайном, полностью освещен, асфальтовые дороги (обслуживаются городом), центральные коммуникации. Прописка Тюменская.

Фотографии
 Просмотров: 626